by Kaslik Workshop
Location: Dubai
LAVA`s layout of the German Pavilion at Expo 2020 Dubai is an ensemble of suspended cubes, a woodland of metal poles, blanketed with the aid of using a floating roof. And at the back of those visually interesting layout factors, the whole thing from the sensible use of nearby climatic situations to substances reuses to connectedness is sustainable.

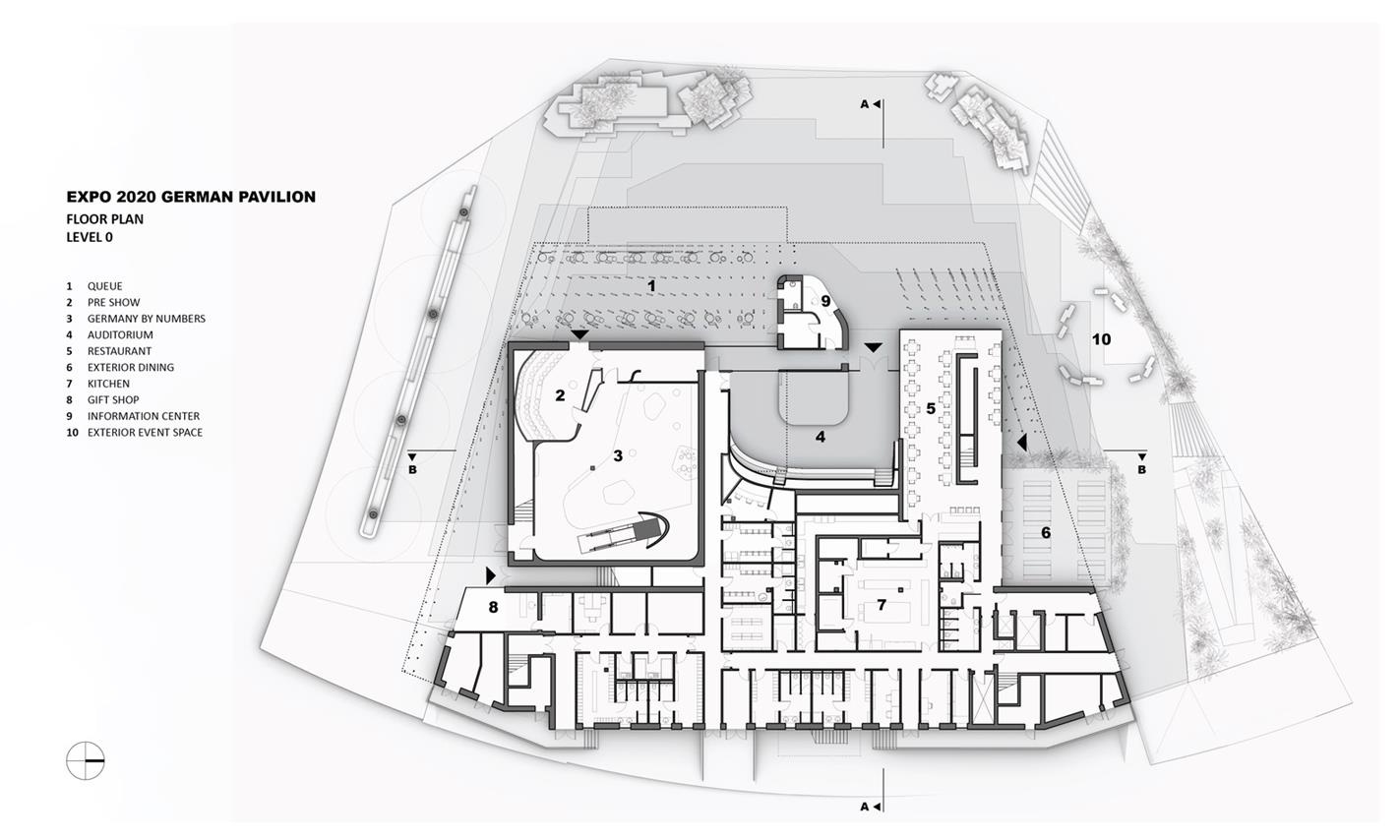
1. Building as Exhibit:
Social Sustainability. The positioning of the cantilevered cubes generates a spacious imperative atrium for gatherings and events. At the coronary heart of the tourist revel in, this blanketed vertical area visually connects all useful regions with one another, facilitates with way-finding, creates numerous visible relationships and get right of entry to points, and assists with the control of massive tourist numbers. The tourist course brings human beings constantly onto terraces (on pinnacle of the cubed spaces). They see their beyond and destiny trajectory, interact with different human beings and experience vistas out to the Expo site. The exhibition spaces, designed with the aid of using statistics and fiction, (Energy Lab, Future City Lab, and Biodiversity Lab) characteristic person immersive studies in the cubes, while terrace exhibitions invite institution interplay. Rather than a conventional exhibition hall, the campus metaphor sees the complete constructing as an exhibit, now no longer simply a canvas to display, however a device for connecting human beings and content, and an area to revel in German innovations.

2. Building as Exhibit:
Structural Sustainability. Three cubes had been stacked on pinnacle of a plinth with different functions (restaurant, pre-show, office, back-of-house) shaped as an summary landscape. This created a massive quantity on the centre, and a roof creates coloration and comfort – a technical cloud. A sandwich of 3 parts: landscape – stacked cubes – roof. People among nature and generation. The smart positioning of the stacked cubes is pushed with the aid of using nearby weather and functions passive power-saving functions that lessen the effect of direct daylight, generate herbal coloration, lower the warmth load and optimise the indoor weather. This sensible introduction of coloration with the aid of using the constructing factors additionally makes “hybrid” air con possible. It additionally references the layout of the nearby courtyard house, with closed outdoors facades and rooms orientated closer to an internal airspace that speak in confidence to every different. A hybrid facade minimises the experience of constructing bulk and creates an iconic framing of the area. At the higher degree a dynamic association of 900 vertical metal poles, a woodland of bushes An opaque, trapezoidal single-layer ETFE membrane may be opened and closed, aware of distinct climate situations at some stage in the six-month Expo period, which includes sandstorms and cooler days, and minimises the want for air con.

The pavilion`s outer shell additionally consists of 1.five metres-huge glass factors that may be circled and opened, permitting the constructing to breathe. LAVA`s bottom-up method focussed on tourist comfort, generation withinside the carrier of humans. “At LAVA we`re constantly searching on the interplay among human beings and the bodily surroundings they inhabit. Sustainability calls for that environments are adaptable and changeable,” brought Wallisser. The transition from warm outdoors to inner turned into cautiously considered. To lessen temperature surprise and keep on power charges the architects designed a transitional area in which site visitors coming into the constructing, with prolonged queues, are cooled with the aid of using a mild water mist emanating from metal poles permitting them to step by step acclimatise. The imperative atrium is cooled with the aid of using bloodless air expelled from the air-conditioned exhibition spaces, thereby decreasing power utilization and enhancing tourist comfort.


The visually placing technical cloud roof creates coloration and comfort. It lets in sunlight hours into the indoors thru more than one small openings, just like daylight penetrating a woodland canopy, growing an ever-converting tourist revel in. Mirror surfaces replicate direct daylight towards the roof skin, a dynamic interaction of light. At night, a area of LED lighting fixtures included withinside the ceiling make the constructing radiate from within. Resource intake and the round financial system had been additionally essential layout drivers and are contemplated in severa passive and lively sustainability functions - from Design for Disassembly (DfD) to “Mine the Scrap”, “gray power”, sustainable and reusable constructing substances. 95% of the constructing could be repurposed after the Expo is finished, with standardised constructing factors which includes metal poles dismantled and reconfigured into distinct geometries.
References:
archdaily.com