House Steffens
by Kaslik Workshop
Location: Namibia

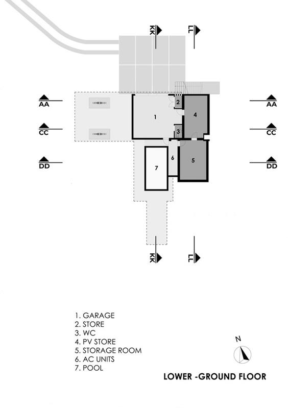
Steffens Residence is located in the east of WinDhoek's FinCenstein Estate, the main purpose of privacy, free space, animal protection, and a peaceful atmosphere. Individual characteristics are large in size, but their decent development areas are limited to 2,500 m2. It is easily maintained in natural landscapes and is composed of geometric ones from three rectangular concrete boxes. The upper 2 is 90 degrees, which minimizes the construction stage, minimizes the construction stage, maximizing panoramic views of the countryside around the west and the background of the AUS Mountains to the southern part .

The 8m long cantilever on the 1st floor is mounted on two V-shaped steel supports. Supported by three points, using the western façade wall as a cantilever, the first-floor box was designed for diagonal deflection and cast with a deflection allowance of 10 mm. This means that the view from the terrace on the ground floor is uninterrupted, with a spectacular framed view of the magnificent Ahuas Mountains to the south from the cantilevered ground floor master bedroom. increase. The open plan indoor and outdoor living areas are seamlessly connected via a large sliding glass door on the ground floor. The pool deck features an automatic slide cover that acts as a sunbathing area supported by a V-shaped steel structure when opened.
The natural landscaping around the house will be restored after the first rainy season. Architecturally, Brutalist's design approach prioritizes bare building materials and structural elements over decoration and strives to create simple, honest and functional buildings with overall visual consistency.

A limited range of finishes are used both indoors and outdoors. Wood-grained concrete walls are offset by ventilated steel cladding that rusts over time and gives a beautiful reddish finish. Other concrete features include cantilevered concrete stairs, polished white aggregate concrete floors used throughout the house, and polished concrete vanity tops. As used throughout, a rusted mesh column. Flowing solar power generation systems provide power to their own applications, and the node face roof window has sunlight for penetrating the southern / attraction of winter.


REFERENCES:
archdaily.com